Viviendas de obra nueva en Almería, junto a la Universidad y el mar

Promoción exclusiva de 16 viviendas dúplex - chalets adosados con sótano, preinstalación de Jacuzzi y aparcamiento con preinstalación para recarga de vehículos eléctricos en La Cañada de San Urbano, una de las zonas residenciales con mayor proyección de Almería

Ver Viviendas

Viviendas junto a los huertos urbanos, para vivir a unos metros de la naturaleza y que tu sótano sea un espacio rentable, en Almería

Las viviendas de Huertos de la Cañada han sido diseñadas para quienes buscan espacio real, comodidad y funcionalidad en una vivienda de obra nueva en Almería. Todas las tipologías ofrecen amplias superficies útiles, distribución eficiente y espacios exteriores privados, ideales tanto para residencia habitual como para inversión en alquiler, especialmente por su cercanía a la Universidad de Almería.

Nuestra cooperativa

Construyendo nuestras propias viviendas

La promoción se desarrolla bajo la fórmula de cooperativa de viviendas, lo que permite a los socios construir su vivienda a precio de coste, sin intermediarios ni sobreprecios. En 2026 entregamos nuestro último proyecto en San José, Cooperativa el Sotillo, que pueden ver en el acceso al puerto. La cooperativa Carlos V fue constituida en 2025 para desarrollar esta promoción de 16 viviendas en La Cañada de San Urbano (Almería), contando con la participación de Ferrer Arquitectos, estudio con más de 30 años de experiencia en la provincia, Ery Consulting y Moreturismo INT SL.

Distribución

Tres plantas, planta baja salón-comedor con cocina integrada, aseo y acceso por porche delantero y conecta con patio trasero a través de gran ventanal. Planta primera destinada al descanso, tres dormitorios, dos baños y terraza. El sótano es un espacio amplio y polivalente, zona de ocio, despacho almacenamiento o apartamento. El segundo plano incorpora opciones de personalización que permiten modificar estancias indicadas en color ROJO. Variantes opcionales, no incluidas en el proyecto base y cada extra conlleva un coste adicional, informando previamente al comprador.

Variante Normal

Variante Normal

Desde 233.000€

Posibles modificaciones

Posibles modificaciones

Precio orientativo por modificación: 5.000€

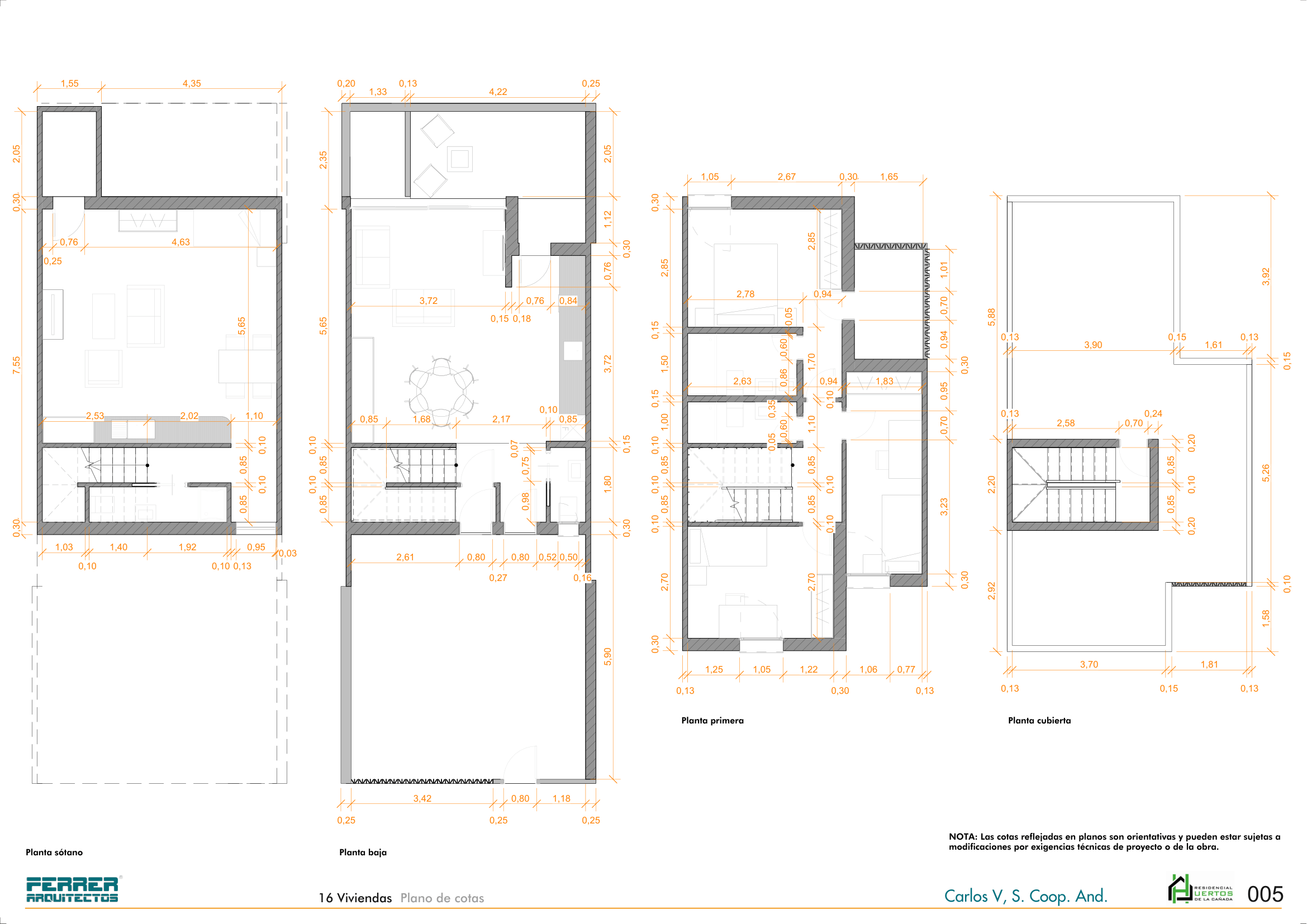
Plano acotado

Plano acotado

Dimensiones detalladas

Disponibilidad de Viviendas

Vivienda Tipo Sup. útil interior Sup. de parcela Interior + Parcela Precio (sin IVA) Estado Plantilla
1 Esquina sin sótano 85,83m² 96,95m² 182,78m² - Disponible PDF
2 Esquina sin sótano 85,83m² 96,95m² 182,78m² - Disponible PDF
3 Normal sin sótano 85,83m² 96,95m² 182,78m² - Disponible PDF
4 Normal sin sótano 85,83m² 96,95m² 225,19m² - Disponible PDF
5 Normal 128,24m² 96,95m² 225,19m² - Disponible PDF
6 Normal 128,24m² 96,95m² 225,19m² - Disponible PDF
7 Normal 128,24m² 96,95m² 225,19m² - Disponible PDF
8 Normal 128,24m² 96,95m² 225,19m² - Disponible PDF
9 Normal 128,24m² 96,95m² 225,19m² - Disponible PDF
10 Normal 128,24m² 96,95m² 225,19m² - Disponible PDF
11 Normal 128,24m² 96,95m² 225,19m² - Disponible PDF
12 Normal 128,24m² 96,95m² 225,19m² - Disponible PDF
13 Normal 128,24m² 96,95m² 225,19m² - Disponible PDF
14 Normal 128,24m² 96,95m² 225,19m² - Disponible PDF
15 Esquina grande 128,24m² 120,90m² 249,14m² - Disponible PDF
16 Esquina grande 128,24m² 149,72m² 277,96m² - Disponible PDF

Puede reservar ahora mismo para asegurar su disponibilidad, se la guardamos durante 15 días mientras decide si se queda con ella.

Reservar Vivienda

Video de la promoción

Video del Arquitecto

Memoria de Calidades

Descubra los acabados de primera calidad y los materiales utilizados en cada una de nuestras viviendas.

PROYECTO: 16 viviendas con 3 dormitorios, sótano y aparcamiento | DIRECCIÓN: La Cañada, Almería | PROMOTOR: Carlos V S. Coop. And. | PROYECTISTA: Ferrer Arquitectos S.L.

ESTRUCTURAL
La estructura portante del edificio se resuelve mediante pórticos de pilares y vigas de hormigón armado convenientemente dimensionados. El forjado reticular se ha proyectado bidireccional y se resuelve mediante casetones recuperables, aprovechando bovedillas con formas de material bituminoso y con sistema de drenaje en el exterior.

ESTRUCTURA HORIZONTAL
Se resuelve mediante forjados unidireccionales con viguetas armadas y bovedillas de hormigón, con previsión de junciones y riendas de bordes necesarios en huecos y cuajos de cerramientos. Las zancas se resuelven con losas de hormigón armado. Los aspectos técnicos que se han tenido en cuenta a la hora de adoptar el sistema estructural son principalmente la seguridad y la estabilidad del edificio, su durabilidad, la prevención de la humedad, la protección contra el fuego y las posibilidades de mercado.

CUBIERTAS
Las cubiertas planas serán de tipo invertido con acabado de baldosas cerámicas, la formación de pendiente se realizará con mortero aligerado con arcilla expandida, capa de compresión de hormigón armado, lámina de geotextil y se protege la integridad de la lámina asfáltica. La impermeabilización consistirá en una lámina de material elástico bituminoso de 4 kg/m², debidamente adherida a su soporte mediante soplete o autoadhesiva.

FACHADAS
El cerramiento consistirá en un muro exterior de medio pie de ladrillo perforado, reperforado, realización de soporte con mortero de cemento y arena de dos capas, una base y una de acabado, capa con barrera de vapor, aislamiento térmico de lana mineral espesor 5 cm, de espesor, cámara de aire de 3 cm, y una tabiquería interior de un pie de ladrillo perforado guarnecida y enlucida, hacia el interior de la vivienda.

MEDIANERAS
Separación entre viviendas mediante partición formada por dos tabicones guarnecidos y enlucidos hacia el interior de la vivienda, acabados con pintura plástica color blanco, y plancha del tipo de lana de roca de 60mm entre tabicones.

SISTEMA DE COMPARTIMENTACIÓN
Tabiquería formada por un tabicón de hueco doble guarnecido y enlucido, enlucido para acabado con pintura plástica color blanco.

SOLADOS
Baldosas de gres compacto color gris, recibido con mortero de memento y arena sobre aislante acústico anti-impacto, color a elegir por D.F., en el interior de las viviendas. Solado con porexpán fregado antideslizante, en baños y cocinas. Soleras de hormigón gres acabado rotorizado, en zona exterior entrada a las viviendas.

TECHOS
Guarnecido y enlucido de yeso o bueno visto, acabado con pintura plástica color blanco. Falso techo formado por placas lisas de yeso laminado suspendidas de estructura galvanizada y bovedillas perimetrales para ocultar instalaciones eléctricas, en baños y cocinas.

FONTANERÍA
El edificio recibe suministro de agua potable de la red municipal de abastecimiento. Tubería de polietileno reticulado de primera calidad para agua fría y caliente. Agua caliente mediante sistema de aerotermia.

ELECTRICIDAD Y TELEVISIÓN
Suministro de energía eléctrica de baja tensión en interior de viviendas cumpliendo toda la normativa vigente sobre reglamentación electrotécnica. Mecanismos de primera calidad. Tomas de televisión en vivienda. Enchufe en azotea.

CLIMATIZACIÓN
Preinstalación por split en salón y dormitorio.

EQUIPAMIENTO
Aparatos sanitarios Casa Roca modelo: "The Gap, Rimless", de primera calidad en color blanco. Grifería Casa Roca, monomando modelo: "Espera". Placas de ducha de resina con herrajes de acero inoxidable.

CARPINTERÍAS EXTERIORES Y CERRAJERÍA
Ventanas de aluminio, lacado color gris plata, con doble acristalamiento térmico/acústico (4+6+4). Persianas de aluminio basado en el mismo color que la carpintería. Puerta metálica de acceso a parcela.

CARPINTERÍAS INTERIORES
Puerta de entrada de seguridad acorazada. Puertas interiores y armarios con puertas correderas lisas lacadas en blanco. Valla perimetral de 1.5 m de altura a base de pletinas metálicas verticales.

Nuestro Equipo

Director Comercial

Director Comercial

Juan Miguel Moreno

Consultor internacional de turismo español y director de MoreTurismo International, especializado en innovación turística y marketing digital a nivel mundial.


+34 691 24 50 47

Ferrer Arquitectos

DISEÑA

Ferrer Arquitectos es una firma española con más de 30 años de experiencia, especializada en arquitectura sostenible y proyectos de gran escala.

Moreturismo

COMERCIALIZA

Consultora turística boutique con más de 20 años de experiencia en Europa e Iberoamérica, especializada en estrategias de desarrollo y promoción turística.

Ery Consulting

GESTIONA

ERY CONSULTING, S.L es una empresa con más de 30 años de experiencia en el sector inmobiliario y financiero, dirigida por Sergio Rodríguez Bedón.

Ubicación Privilegiada

Huertos de la Cañada se sitúa en La Cañada de San Urbano, una zona residencial consolidada del área metropolitana de Almería, a:

  • 5 minutos de la Universidad de Almería
  • 10 minutos del centro de Almería
  • Excelente conexión con la Autovía del Aeropuerto
  • Cercana a zonas de playa como Retamar y El Toyo

Asegure su villa ahora

Solo 16 unidades disponibles. Una oportunidad estratégica de inversión y calidad de vida.

Contacta con nosotros

Calle Carlos V, 04120 Almería

+34 691 24 50 47

infohuertosdelacanada@gmail.com

Agendar Visita